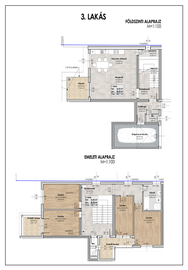
Hajdúböszörmény Hadházi u 92 sz alatti 6 lakásos társasház udvari lakása

Mérete:140 m2+10 m2 terasz

Kb. 80m2 saját használatú füvesített kerttel, kocsibeállóval.

Az ára:100 Mft; a garázs 7 MFt


Földszinten:

  • szélfogó előtér
  • földszinti WC
  • mosókonyha
  • nappali konyhával és étkezővel–kijárat a kertbe
  • kamra
  • átjáró a garázsba
  • galériás, impozáns lépcsőház

Emeleten:

  • 4szoba, melyek közül 3 terasszal rendelkezik.
  • emeleti WC
  • kádas és zuhanyzós fürdőszoba
  • közlekedő, melyből a terasz nyílik

Nagypanelos, favázas könnyűszerkezetes épület, mely különösen energiatakarékos.
A padlófűtést és a meleg vizet gázkazán biztosítja.

A lakás klímakészülékkel ellátott.


A lakások között fokozottan hangszigetelő falszerkezet lett kialakítva.
A műanyag külső nyílászárókban 3 rétegű fokozott hőszigetelésű üveg van.


A lakás tehermentes, azonnal költözhető.
CSOK, kedvezményes lakáshitel igényelhető.

Amennyiben Önnek fontos az értékállóság, kiváló elosztás, minőségi, igényes kivitelezés, akkor keressen.

Hívjon most

20250129_104526[1]
20250314_093018[1]

20250314_093228[1]
20250314_093102[1]
20250314_093125[1]
Süti kezelés beállítása
Mi és partnereink az Ön engedélyét kérjük arra, hogy cookie-kat tároljunk eszközén személyre szabott hirdetések és tartalom nyújtásához, hirdetés- és tartalomméréshez valamint nézettségi adatok gyűjtéséhez.
Süti kezelés beállítása