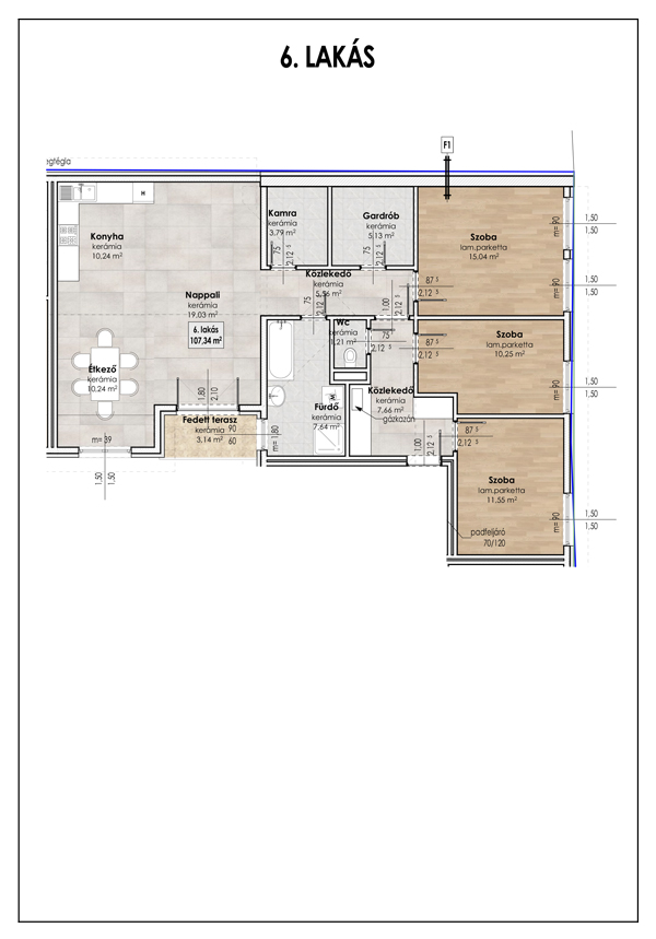
Hajdúböszörmény Hadházi u 92 sz alatti 6 lakásos társasház emeleti lakása

Mérete: 107m2+3m2 terasz

Nagy közös, füvesített udvar kocsibeállóval.

A lakás ára:77 Mft; a garázs 7 MFt


Helyiségek:

  • tágas közlekedő
  • különWC
  • gardrób
  • nappali konyhával és étkezővel---kijárat a teraszra
  • kamra
  • kádas és zuhanyfülkés impozáns fürdőszoba mennyezetig burkolva
  • 3 szoba lamináltpadlóval burkolva

Nagypanelos, favázas könnyűszerkezetes épület, mely különösen energiatakarékos.


A padlófűtést és a meleg vizet gázkazán biztosítja. A lakás klímakészülékkel ellátott.


A lakások között fokozottan hangszigetelő falszerkezet lett kialakítva.
A műanyag külső nyílászárókban 3 rétegű fokozott hőszigetelésű üveg van.

A lakás tehermentes, azonnal költözhető.
CSOK, kedvezményes lakáshitel igényelhető.

Amennyiben Önnek fontos az értékállóság, kiváló elosztás, minőségi, igényes kivitelezés, akkor keressen.

Hívjon most

20250129_104548[1]
20250218_150045[1]

20250218_150137[1]
20250218_150154[1]
20250218_150110[1]
Süti kezelés beállítása
Mi és partnereink az Ön engedélyét kérjük arra, hogy cookie-kat tároljunk eszközén személyre szabott hirdetések és tartalom nyújtásához, hirdetés- és tartalomméréshez valamint nézettségi adatok gyűjtéséhez.
Süti kezelés beállítása