Az ingatlan utcai felőli traktusában elhelyezkedő emeleti lakás.

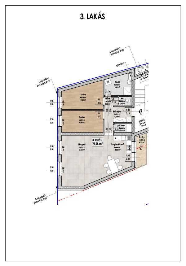
Mérete: 76m2+4m2 erkély.


Kiváló, belvárosi elhelyezkedés. Piac, posta, rendelőintézet néhány száz méterre található.
4 lakásos társasház, alacsony közös költséggel.

Jellemzők:

  • 3 lakásos lépcsőház, acél biztonsági bejárati ajtó
  •  2 szoba
  •  nappali konyhával és étkezővel
  •  kamra
  •  kádas fürdőszoba
  •  külön WC

A konyha kialakítása egyéni igény szerint lehetséges.
A fürdőszoba mennyezetig igényesen burkolt.


A fűtést és a meleg vizet saját gázkazán biztosítja. A nyári meleget a beépített klímakészülék tartja távol.


Az energiatakarékos használatért a téglaszerkezetű falakon lévő 15 cm-es, a padlástérben pedig 25cm-es szigetelés felel.


A műanyag külső nyílászárókban 3 rétegű fokozott hőszigetelésű üveg van.


A lakás tehermentes, azonnal költözhető.
CSOK, kedvezményes lakáshitel igényelhető.
A lakáshoz garázs vásárolható 7 Mft-ért.

Amennyiben Önnek fontos az értékállóság, kiváló elosztás, minőségi, igényes kivitelezés, akkor keressen.

Hívjon most

20250316_070143[1]
20250316_070319[1]
20250316_070233[1]
Süti kezelés beállítása
Mi és partnereink az Ön engedélyét kérjük arra, hogy cookie-kat tároljunk eszközén személyre szabott hirdetések és tartalom nyújtásához, hirdetés- és tartalomméréshez valamint nézettségi adatok gyűjtéséhez.
Süti kezelés beállítása